Licht 2-kamerappartement met zonnige tuin – Burmanstraat 35
• 47 m² woonoppervlakte
• Zonnige tuin op het zuiden
• Volledig gerenoveerd in 2019
• 1 ruime slaapkamer + moderne badkamer
• Halfopen keuken met inbouwapparatuur
• Privé berging in de binnentuin
• Gemeenschappelijk dakterras en fietsenstalling
• Rustige ligging dichtbij de Amstel en De Pijp
• Erfpacht afgekocht tot 31-12-2035
• Energielabel B – dubbel glas en vloerisolatie
• VvE € 210,32 per maand
• Vraagprijs € 450.000 k.k.
1091 SH Amsterdam
Weesperzijde – Midden/Zuid
Licht, stijlvol en volledig vernieuwd 2-kamerappartement met zonnige tuin op toplocatie nabij de Amstel
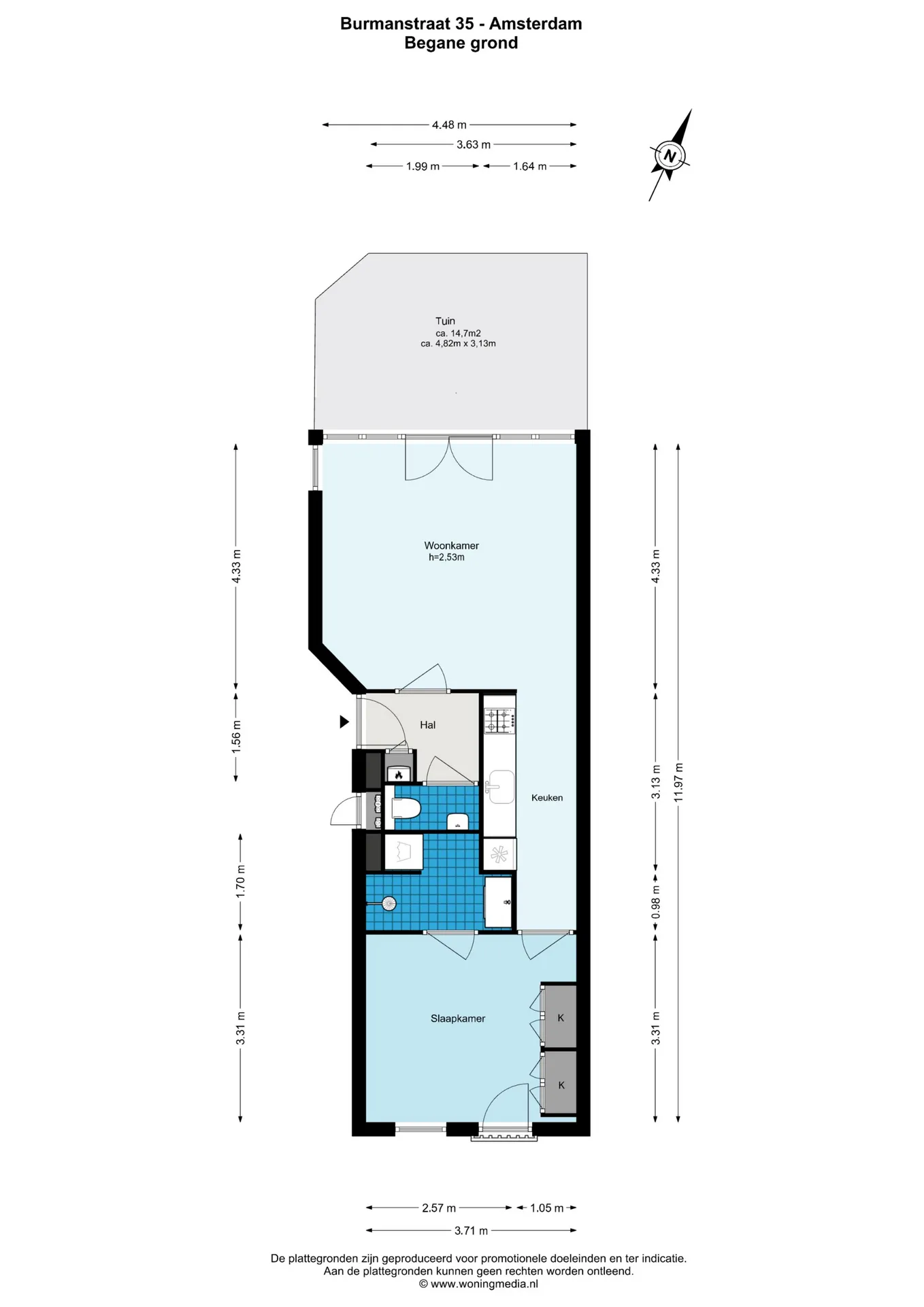
Dit sfeervolle en instapklare appartement van ca. 47 m² ligt op de begane grond van een verzorgd complex uit 1985 en werd in 2019 volledig gerenoveerd. De woning beschikt over een royale tuin op het zuiden, een moderne halfopen keuken, een ruime slaapkamer en een privé berging in de afgesloten binnentuin. Gelegen in een groene, rustige straat op enkele meters van de Amstel en vlakbij De Pijp, biedt deze woning een combinatie van comfort, licht en een uitzonderlijke ligging.
Indeling
Via de gemeenschappelijke entree bereikt u de voordeur van het appartement. In de hal bevindt zich het separate toilet. De lichte woonkamer aan de voorzijde heeft openslaande deuren naar de zonnige tuin op het zuiden – een ideale plek voor ontbijt in de ochtendzon of ontspannen aan het einde van de dag. De moderne halfopen keuken is voorzien van inbouwapparatuur en is efficiënt ingedeeld. Aan de achterzijde ligt de ruime slaapkamer met inbouwkasten en directe toegang tot de badkamer met inloopdouche en wastafelmeubel. Er is een aansluiting voor wasmachine en droger.
Binnentuin, berging & dakterras
Achter het complex bevindt zich een verzorgde, afgesloten binnentuin met een gedeelde fietsenstalling en een privé berging van de woning. Bewoners kunnen daarnaast gebruikmaken van het gemeenschappelijke dakterras bovenop het complex, een rustige plek met uitzicht en extra buitenruimte.
Locatie
De Burmanstraat is een charmante zijstraat van de Weesperzijde, op enkele passen van de Amstel. De omgeving biedt een unieke mix van rust, groen en stedelijke dynamiek.
Belangrijke highlights:
• Metro Wibautstraat op slechts 100 meter
• Amstelstation binnen 4 minuten fietsen
• Snel naar de Zuidas met OV (±15 minuten)
• Grootste Albert Heijn van Amsterdam op 150 meter
• Tophoreca om de hoek: De Ysbreeker, Loulou Pizzabar, Rijsel, Hesp, Bam Boa, Volkshotel, BAUT
• Sportscholen als Vondelgym, Rocycle en PLTS op loopafstand
Ook De Pijp, de Albert Cuypmarkt en culturele hotspots als Carré, De Kleine Komedie en Rialto liggen op korte afstand.
Parkeren
In de straat is ruim voldoende parkeergelegenheid op basis van vergunning. Betaald parkeren en bezoekersplekken aanwezig.
Samengevat
- • Instapklaar 2-kamerappartement van ca. 47 m²
- • Zonnige tuin op het zuiden
- • Volledig gerenoveerd in 2019
- • Moderne keuken en ruime slaapkamer
- • Badkamer met inloopdouche en wastafelmeubel
- • Privé berging in afgesloten binnentuin
- • Gemeenschappelijk dakterras en fietsenstalling
- • Energielabel B, dubbel glas en vloerisolatie
- • Erfpacht afgekocht tot 31-12-2035
- • Gezonde VvE, servicekosten € 210,32 p/m
- • Rustige ligging nabij de Amstel en De Pijp
- • Uitstekende bereikbaarheid met OV
- • Vraagprijs € 450.000 k.k.
Een licht, modern en charmant appartement op een van de meest geliefde plekken van Amsterdam. Plan een bezichtiging en ervaar het zelf – dit is wonen met comfort én karakter.
Overdracht
| Servicekosten | € 210 per maand |
| Laatst gevraagde prijs | € 450.000 kosten koper |
| Vraagprijs per m² | € 9.574 |
| Status | Verkocht |
Bouw
| Soort appartement | Benedenwoning (appartement) |
| Soort bouw | Bestaande bouw |
| Bouwjaar | 1985 |
Oppervlakten en inhoud
| Wonen | 47 m² |
| Externe bergruimte | 4 m² |
| Inhoud | 172 m³ |
Indeling
| Aantal kamers | 2 kamers (1 slaapkamer) |
| Aantal badkamers | 1 badkamer |
| Badkamervoorzieningen | Douche en wastafelmeubel |
| Aantal woonlagen | 1 woonlaag |
| Gelegen op | Begane grond |
| Energielabel | B |
| Isolatie | Dubbel glas en vloerisolatie |
| Verwarming | Cv-ketel |
| Warm water | Cv-ketel |
| Cv-ketel | Gasgestookt combiketel, eigendom |
Kadastrale gegevens
| Kadastrale aanduiding | AMSTERDAM W 7346 |
| Eigendomssituatie | Gemeentelijke erfpacht |
| Lasten | Afgekocht tot 31-12-2035 |
Buitenruimte
| Tuin | Achtertuin |
Parkeergelegenheid
| Soort parkeergelegenheid | Betaald parkeren en parkeervergunningen |
VvE checklist
| Inschrijving KvK | Ja |
| Jaarlijkse vergadering | Ja |
| Periodieke bijdrage | Ja |
| Reservefonds aanwezig | Ja |
| Onderhoudsplan | Ja |
| Opstalverzekering | Ja |
Geïnteresseerd in deze woning?
Aarzel niet om contact op te nemen en met een van onze makelaars te praten om alles te ontdekken wat je wilt weten over het onroerend goed, de buurt en alles daar tussenin.
























